Project Details
Status | Gaining council consent |
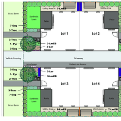
Units | 7 townhouses, 2-level build |
Title | Freehold |
Location | Papakura, Auckland |
Structure | Insulated concrete formwork |
Bed | 2-3 |
Bath | 1.5 |
Study | 0 |
Car Park | 1 |
Status | Gaining council consent |
Units | 7 townhouses, 2-level build |
Title | Freehold |
Location | Papakura, Auckland |
Structure | Insulated concrete formwork |
Bed | 2-3 |
Bath | 1.5 |
Study | 0 |
Car Park | 1 |