Project Details
Status | Gaining council consent |
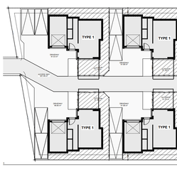
Units | 9 standalone houses, 2-level build |
Title | Freehold |
Location | Mangere East, Auckland |
Structure | Insulated concrete formwork |
Bed | TBA |
Bath | TBA |
Study | TBA |
Car Park | Double garages |
Status | Gaining council consent |
Units | 9 standalone houses, 2-level build |
Title | Freehold |
Location | Mangere East, Auckland |
Structure | Insulated concrete formwork |
Bed | TBA |
Bath | TBA |
Study | TBA |
Car Park | Double garages |