Project Details
Status | Complete |
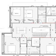
Units | 1 standalone, 2-level build (x2) |
Title | Freehold |
Location | Flat Bush, Auckland |
Structure | Timber framing |
Bed | 6 |
Bath | 4.5 |
Study | 2 sitting rooms / studies |
Car Park | Double garage + 2 in front |
The Flat Bush house project is surrounded by beautiful scenic views located in the developing area of Flat Bush. This is a luxurious 2-level, single house build offering a double garage and an impressive six bedrooms. This architecturally designed home reflects a modern, spacious, and family-friendly lifestyle with the security of well crafted, timber frame construction. Flat Bush is a newly developed residential area, establishing itself as a modern residential community in Auckland and a desirable place to live.























