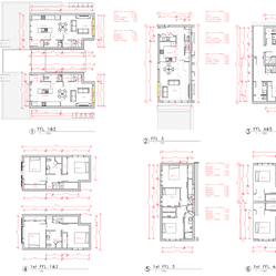
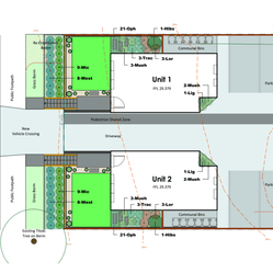
Project Details
Status | Gaining council consent |
Units | 5 townhouses, 2-level build |
Title | Freehold |
Location | Avondale, Auckland |
Structure | Insulated concrete formwork |
Bed | 2-3 |
Bath | 1.5 |
Study | 0 |
Car Park | 0-1 |
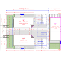
Status | Gaining council consent |
Units | 5 townhouses, 2-level build |
Title | Freehold |
Location | Avondale, Auckland |
Structure | Insulated concrete formwork |
Bed | 2-3 |
Bath | 1.5 |
Study | 0 |
Car Park | 0-1 |